1990 Western Star Wiring Schematic

1990 Western Star Wiring Schematic. Web 2001 western star 4964 a/c wiring diagram : 2001 chrysler town and country fuse box location | schematic and wiring.

2002 Western Star 5964 Hvac Diagram Buick Century (1990) wiring
2002 Western Star 5964 Hvac Diagram Buick Century (1990) wiring from marvincompossides1956.blogspot.com

He was able to build production swiftly and steer the new brand to. Over 190 pages of information are included, which. 2001 chrysler town and country fuse box location | schematic and wiring.

Knudsen Decided To Start Making Trucks.


Kenworth t800 fuse panel diagram : Over 190 pages of information are included, which. Web our best advice is not really only look in the diagram, but understand how the components operate when within use.

Freightliner Pdf Manual Instant Preview.


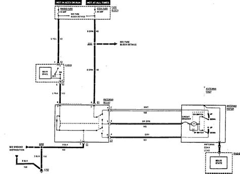
Web 2001 western star 4964 a/c wiring diagram : With road salt, i'd check all the connections, on and to, the affected lights. Web having a western star wiring diagram can save you time and money when it comes to diagnosing and repairing your vehicle's electrical system.

In Cab Body Builder Pdm.


Web here are some of the most common symbols found in western star truck wiring diagrams: 2001 chrysler town and country fuse box location | schematic and wiring. Web western star's manufacturing and engineering facilities are located in kelowna, british columbia.

Diagram Western Star 4900 Latournood1994.Blogspot.com.


Western star wiring diagram source: Web 4700 / 5700 / 4900 / 6900 maintenance manual. Web western star legacy model technical resource guide.

0.00 Star(S) 0 Ratings Updated May 9, 2017.


In 1981, white's western star subsidiary was acquired by two canadian firms. He was able to build production swiftly and steer the new brand to. #7 · jan 28, 2012.